- 新築分譲住宅のイーカム
- 一戸建てをエリアから探す
- 横浜市鶴見区
- 上末吉
- ガルボシティー横浜市鶴見区上末吉1丁目2期
新築一戸建て

ガルボシティー横浜市鶴見区上末吉1丁目2期
情報更新日:2026/05/08 次回更新予定日:2026/05/22
所在地神奈川県横浜市鶴見区上末吉1丁目15番20号[周辺地図]
交 通京浜東北・根岸線「鶴見」駅バス9分 停歩4分





*JR京浜東北線「鶴見」駅バス9分「末吉不動前」停歩4分
*閑静な住宅街
*収納充実!
*【アルミ樹脂複合サッシ、断熱性能等級5、一次エネルギー等級6】(ZEH水準)
*イーカム売主物件です
*完成予想パース(CGパース)あり
*閑静な住宅街
*収納充実!
*【アルミ樹脂複合サッシ、断熱性能等級5、一次エネルギー等級6】(ZEH水準)
*イーカム売主物件です
*完成予想パース(CGパース)あり
担当スタッフより
- 物件担当より
- 現地のご案内、建物のご説明行なっておりますのでお問い合わせ下さい。
(床・建具、EIDAI:ハードメイプル、パールペール)
〈イーカム首都圏営業課〉
物件詳細情報
物件No.20000451936
| 所在地 | 神奈川県横浜市鶴見区上末吉1丁目15番20号 | ||
|---|---|---|---|
| 交通 | 京浜東北・根岸線「鶴見」駅バス9分 バス停「末吉不動前」停歩4分 東急東横線「綱島」駅バス15分 バス停「末吉不動前」停歩4分 |
||
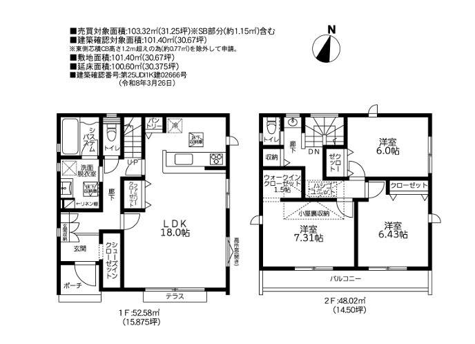
| 間取 | 3LDK | ||
| 土地面積 | 103.32m² (セットバック1.15m²、31.25坪 SB部分約1.15平米含む) | ||
| 建物面積 | 100.6m² (30.375坪) | ||
| 構造・規模 | 木造 2階建て | 築年・入居 | 2026年10月下旬 |
| 建物現況 | 建築中 | 建築確認番号 | 第25UDI1K建02666号 |
| 駐車スペース | 1台 | 引渡時期 | 期日指定有(2026年11月下旬) |
| 地目 | 宅地 | 用途地域 | 第二種中高層住居専用地域 |
| 建ぺい率 | 60% | 容積率 | 150% |
| 都市計画 | 市街化区域 | 権利種類 | 所有権 |
| 接道 | 南側3.25M道路に接道 | 小学校区 | 末吉小学校 |
| 中学校区 | 末吉中学校 | 取引態様 | 売主 |
| 設備 | 公営水道、本下水、都市ガス 物件番号:14292 |
||
| 備考・制限等 | *建築確認対象面積 101.40平米(30.67坪):東側芯積CB高さ1.2m超えの為(約0.77平米)を除外して申請 *学区は目安であり、入学を保証するものではありません(必ず管轄教育委員会へご確認下さい) *中東情勢の影響による物流停滞等で、工事期間の延長を余儀なくされる場合があります |
||
こだわり項目
閑静な住宅地LDK15帖以上制震構造床下収納小屋裏収納複層ガラス食器洗浄機ガスコンロシステムキッチンカウンターキッチン3口以上コンロパントリー(食器・食品の収納庫)トイレ2ヶ所温水洗浄便座シャワー付洗面台浴室乾燥機追焚機能TV付浴室浴室に窓ウォークインクローゼットシューズインクローゼットTVモニタ付インターホンEV車充電設備
- ※価格は物件の代金総額を表示しており、消費税が課税される場合は税込み価格です。(1,000円未満は切り上げ。)
税率は引き渡し時期により異なりますので、各物件の詳細につきましてはお問い合わせください。 - ※敷地権利が借地権のものは価格に権利金を含みます。
- ※制作中に内容が変更される場合もありますので、あらかじめご了承ください。
- ※購入の前には物件内容や契約条件についてご自身で十分な確認をしていただくようにお願いいたします。
- ※完成予想図はいずれも外構、植栽、外観等実際のものとは多少異なることがあります。
- ※CG合成の画像の場合、実際とは多少異なる場合があります。
周辺地図
周辺施設一覧
- ショッピングセンター
- スーパー
- コンビニ
- ドラッグストア
- ホームセンター
- 飲食店
- その他店舗
- 商店街
- 大学
- 専門学校
- 高校・高専
- 中学校
- 小学校
- 保育園
- 幼稚園
- 公民館・児童館
- 病院
- 郵便局
- 役所
- 図書館
- 金融機関
- 警察・消防
- 趣味・娯楽施設
- 公園・運動施設
- 周辺の街並み
- 駅
- その他
お問い合せ先
- 株式会社イーカム 首都圏営業課
- お電話でのお問い合わせは
0120-304-980「ホームページを見た」とお問い合わせください - 神奈川県相模原市緑区橋本3-11-8
- 免許番号:国土交通大臣(1)第10851号
- 許認可番号:神奈川県知事許可 (特-4)第44816号 一級建築士事務所 第11367号
- 新築分譲住宅のイーカム
- 一戸建てをエリアから探す
- 横浜市鶴見区
- 上末吉
- ガルボシティー横浜市鶴見区上末吉1丁目2期








