- 新築分譲住宅のイーカム
- 土地をエリアから探す
- 茅ヶ崎市
- 甘沼
- 建築条件付売地 茅ヶ崎市甘沼4期
土地

建築条件付売地 茅ヶ崎市甘沼4期
情報更新日:2026/04/23 次回更新予定日:2026/05/07 取引条件有効期限:2026/05/07
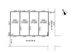
所在地神奈川県茅ヶ崎市甘沼1027番[周辺地図]
交 通相模線「香川」駅徒歩17分





*JR相模線「香川」駅徒歩17分・「茅ヶ崎」駅バス16分「松風台」停歩5分
*南西側7.2m道路に面した日当りの良い分譲地
*標準建物価格(イーカム施工):1480万円(100.19平米、30.25坪、2階建)
*要土地先行決済となります
*イーカム売主物件です
*南西側7.2m道路に面した日当りの良い分譲地
*標準建物価格(イーカム施工):1480万円(100.19平米、30.25坪、2階建)
*要土地先行決済となります
*イーカム売主物件です
担当スタッフより
- 物件担当より
- イーカムの設計士と一緒に理想のマイホームを作ってみませんか?
※耐震等級3へのグレードアップオプションは税込み176万円でお受けできます。詳細はお問い合わせ下さい。
〈イーカム営業課〉
各棟情報
物件詳細情報
物件No.20000451792
| 所在地 | 神奈川県茅ヶ崎市甘沼1027番 | ||
|---|---|---|---|
| 交通 | 相模線「香川」駅徒歩17分 相模線「茅ケ崎」駅バス16分 バス停「松風台」停歩5分 |
||
| 土地面積 | 122.59m² ~ 122.6m² (37.08坪) | ||
| 販売区画数 | 4区画 | 用途地域 | 第一種低層住居専用地域 |
| 建ぺい率 | 50% | 容積率 | 100% |
| 都市計画 | 市街化区域 | 建築条件 | 建築条件付 |
| 地目 | 畑 | 現況 | 未造成 |
| 引渡時期 | 相談 | 引渡条件 | 更地渡し |
| 権利種類 | 所有権 | 接道 | 南西側7.2M道路に接道 南東側4.6M道路に接道 |
| 小学校区 | 香川小学校 | 中学校区 | 鶴が台中学校 |
| 取引態様 | 売主 | ||
| 設備 | 公営水道、本下水、都市ガス 物件番号:14198 |
||
| 備考・制限等 | *地目:畑(農地転用届の上土地売買) *公法制限:準防火地域、絶対高さ10m *学区は目安であり、入学を保証するものではありません(必ず管轄教育委員会へご確認下さい) |
||
こだわり項目
区画整理及び分譲地自由設計対応
- ※価格は物件の代金総額を表示しており、消費税が課税される場合は税込み価格です。(1,000円未満は切り上げ。)
税率は引き渡し時期により異なりますので、各物件の詳細につきましてはお問い合わせください。 - ※敷地権利が借地権のものは価格に権利金を含みます。
- ※制作中に内容が変更される場合もありますので、あらかじめご了承ください。
- ※購入の前には物件内容や契約条件についてご自身で十分な確認をしていただくようにお願いいたします。
- ※完成予想図はいずれも外構、植栽、外観等実際のものとは多少異なることがあります。
- ※CG合成の画像の場合、実際とは多少異なる場合があります。
周辺地図
周辺施設一覧
- ショッピングセンター
- スーパー
- コンビニ
- ドラッグストア
- ホームセンター
- 飲食店
- その他店舗
- 商店街
- 大学
- 専門学校
- 高校・高専
- 中学校
- 小学校
- 保育園
- 幼稚園
- 公民館・児童館
- 病院
- 郵便局
- 役所
- 図書館
- 金融機関
- 警察・消防
- 趣味・娯楽施設
- 公園・運動施設
- 周辺の街並み
- 駅
- その他
お問い合せ先
- 株式会社イーカム 営業課
- お電話でのお問い合わせは
0120-730-443「ホームページを見た」とお問い合わせください - 神奈川県相模原市緑区橋本3-11-8
- 免許番号:国土交通大臣(1)第10851号
- 許認可番号:神奈川県知事許可 (特-4)第44816号 一級建築士事務所 第11367号
- 新築分譲住宅のイーカム
- 土地をエリアから探す
- 茅ヶ崎市
- 甘沼
- 建築条件付売地 茅ヶ崎市甘沼4期

