- 新築分譲住宅のイーカム
- 一戸建てをエリアから探す
- 茅ヶ崎市
- 香川
- ガルボシティー茅ヶ崎市香川2丁目2期
新築一戸建て

ガルボシティー茅ヶ崎市香川2丁目2期
情報更新日:2026/04/16 次回更新予定日:2026/04/30
所在地神奈川県茅ヶ崎市香川2丁目25番22号[周辺地図]
交 通相模線「香川」駅徒歩8分





*JR相模線「香川」駅徒歩8分
*閑静な住宅街
*リビングに4帖の畳コーナー有
*収納充実!
*カースペース2台可(車種による)
*【アルミ樹脂複合サッシ、断熱性能等級5、一次エネルギー等級6】(ZEH水準)
*イーカム売主物件です
*閑静な住宅街
*リビングに4帖の畳コーナー有
*収納充実!
*カースペース2台可(車種による)
*【アルミ樹脂複合サッシ、断熱性能等級5、一次エネルギー等級6】(ZEH水準)
*イーカム売主物件です
担当スタッフより
- 物件担当より
- 現地のご案内、建物のご説明行なっておりますのでお問い合わせ下さい。
1号棟(床・建具、EIDAI:グレージュエルム、ネイキッドライト)
〈イーカム販売課〉
物件詳細情報
物件No.20000450788
| 所在地 | 神奈川県茅ヶ崎市香川2丁目25番22号 | ||
|---|---|---|---|
| 交通 | 相模線「香川」駅徒歩8分 | ||
| 間取 | 3LDK | ||
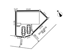
| 土地面積 | 128.93m² (39.00坪) | ||
| 建物面積 | 100.19m² (30.25坪) | ||
| 構造・規模 | 木造 2階建て | 築年・入居 | 2026年11月中旬 |
| 建物現況 | 建築中 | 建築確認番号 | 第25UDI1K建02803号 |
| 駐車スペース | 2台 | 引渡時期 | 期日指定有(2026年12月中旬) |
| 地目 | 宅地 | 用途地域 | 第一種中高層住居専用地域 |
| 建ぺい率 | 60% | 容積率 | 200% |
| 都市計画 | 市街化区域 | 権利種類 | 所有権 |
| 接道 | 南側4.5M道路に接道 南西側4.6M道路に接道 |
小学校区 | 香川小学校 |
| 中学校区 | 北陽中学校 | 取引態様 | 売主 |
| 設備 | 公営水道、本下水、個別LPG 物件番号:14311 |
||
| 省エネ性能表示 | エネルギー消費性能:★★★ 断熱性能:5段階 目安光熱費:約25.3万円/年 |
||
| 備考・制限等 | *開発許可番号:第317号 平成3年6月5日 *開発検査済番号:第1-21号 平成4年3月13日 *私道の持分無(通行・掘削承諾書有) *学区は目安であり、入学を保証するものではありません(必ず管轄教育委員会へご確認下さい) |
||
こだわり項目
閑静な住宅地LDK15帖以上制震構造床下収納小屋裏収納複層ガラス食器洗浄機ガスコンロシステムキッチンカウンターキッチン独立型キッチン3口以上コンロパントリー(食器・食品の収納庫)トイレ2ヶ所温水洗浄便座シャワー付洗面台浴室乾燥機追焚機能TV付浴室浴室に窓ウォークインクローゼットシューズインクローゼットTVモニタ付インターホンEV車充電設備
- ※価格は物件の代金総額を表示しており、消費税が課税される場合は税込み価格です。(1,000円未満は切り上げ。)
税率は引き渡し時期により異なりますので、各物件の詳細につきましてはお問い合わせください。 - ※敷地権利が借地権のものは価格に権利金を含みます。
- ※制作中に内容が変更される場合もありますので、あらかじめご了承ください。
- ※購入の前には物件内容や契約条件についてご自身で十分な確認をしていただくようにお願いいたします。
- ※完成予想図はいずれも外構、植栽、外観等実際のものとは多少異なることがあります。
- ※CG合成の画像の場合、実際とは多少異なる場合があります。
周辺地図
周辺施設一覧
- ショッピングセンター
- スーパー
- コンビニ
- ドラッグストア
- ホームセンター
- 飲食店
- その他店舗
- 商店街
- 大学
- 専門学校
- 高校・高専
- 中学校
- 小学校
- 保育園
- 幼稚園
- 公民館・児童館
- 病院
- 郵便局
- 役所
- 図書館
- 金融機関
- 警察・消防
- 趣味・娯楽施設
- 公園・運動施設
- 周辺の街並み
- 駅
- その他
お問い合せ先
- 株式会社イーカム 販売課
- お電話でのお問い合わせは
0120-007-037「ホームページを見た」とお問い合わせください - 神奈川県相模原市緑区橋本3-11-8
- 免許番号:国土交通大臣(1)第10851号
- 許認可番号:神奈川県知事許可 (特-4)第44816号 一級建築士事務所 第11367号
- 新築分譲住宅のイーカム
- 一戸建てをエリアから探す
- 茅ヶ崎市
- 香川
- ガルボシティー茅ヶ崎市香川2丁目2期










